M. 134
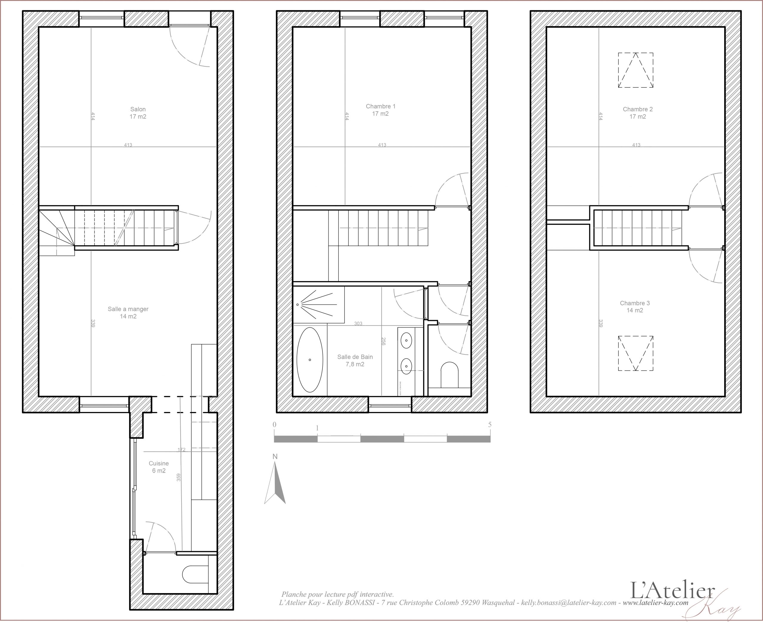
Rénovation et aménagement virtuel d’une Maison de 140m2

Architecture d’Intérieur
Rénovation et aménagement d’une maison familiale de 140 m2
Une cage d’escalier agréable, centre d’une maison lumineuse, chaleureuse et contemporaine
DÉCOUVREZ LE PROCESSUS DE TRAVAIL SUIVI POUR CETte Maison >>>
Le Sur Mesure
Aucun projet n’étant le même, nous vous invitons à nous contacter
ou programmer votre premier rendez-vous « découverte et conseil »
pour mieux développer votre projet personnel et unique,
défini par vos envies, vos besoins et votre budget










