O. 036r
Rénovation d’un Penthouse de 200 m2

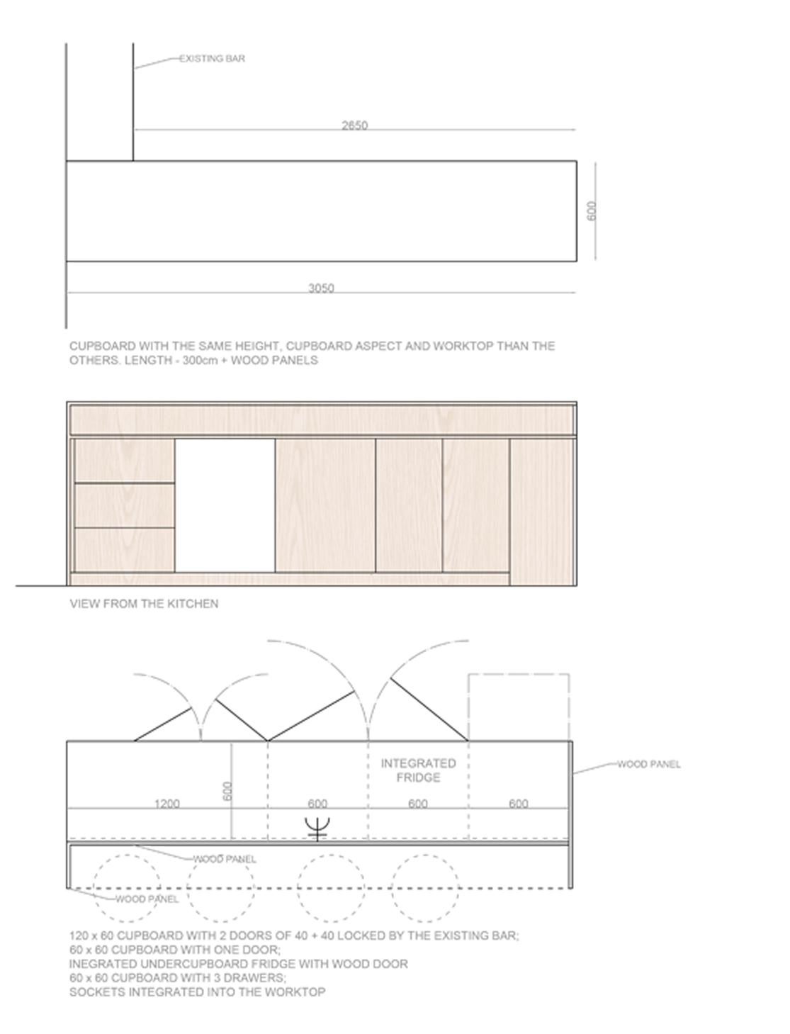
Rénovation d’Intérieur
Rénovation d’un Penthouse Londonien Résidentiel de 200 m2
Création d’une cuisine fonctionnelle, lumineuse et agréable, à la fois séparée et ouverte sur les espaces de vie.
Découvrez l’Aménagement d’Intérieur Des espaces de vie de cet appartement >>>
Découvrez l’Aménagement d’Intérieur de La suite Parentale de cet appartement >>>
Découvrez LE PROCESSUS DE TRAVAIL SUIVI POUR CET APPARTEMENT >>>
Le Sur Mesure
Aucun projet n’étant le même, nous vous invitons à nous contacter
ou programmer votre premier rendez-vous « découverte et conseil »
pour mieux développer votre projet personnel et unique,
défini par vos envies, vos besoins et votre budget










