Y. 135
Rénovation d’un appartement de 55m2

Architecture d’Intérieur
Rénovation d’un appartement de 55 m2 en vue d’une location courte durée – type AirBnB
Inspiration de la nature – la lumière et les couleurs naturelles – complétée par une signature forte
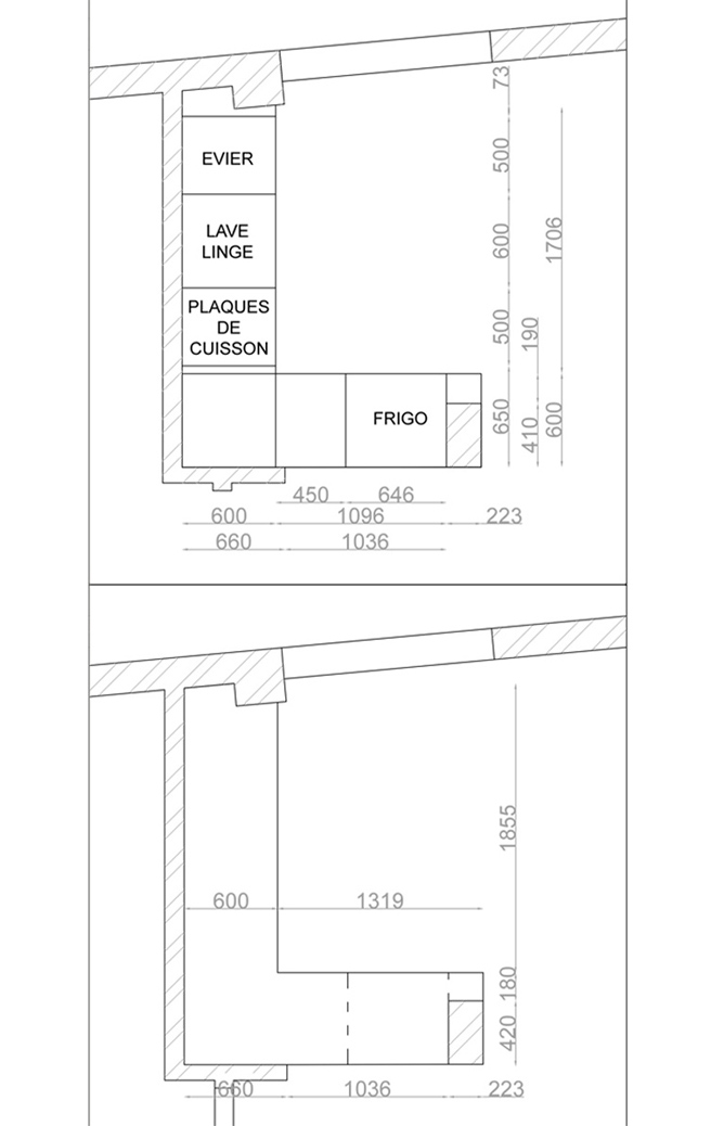
DÉCOUVREZ LE PROCESSUS DE TRAVAIL SUIVI POUR CET appartement >>>
Le Sur Mesure
Aucun projet n’étant le même, nous vous invitons à nous contacter
ou programmer votre premier rendez-vous « découverte et conseil »
pour mieux développer votre projet personnel et unique,
défini par vos envies, vos besoins et votre budget











